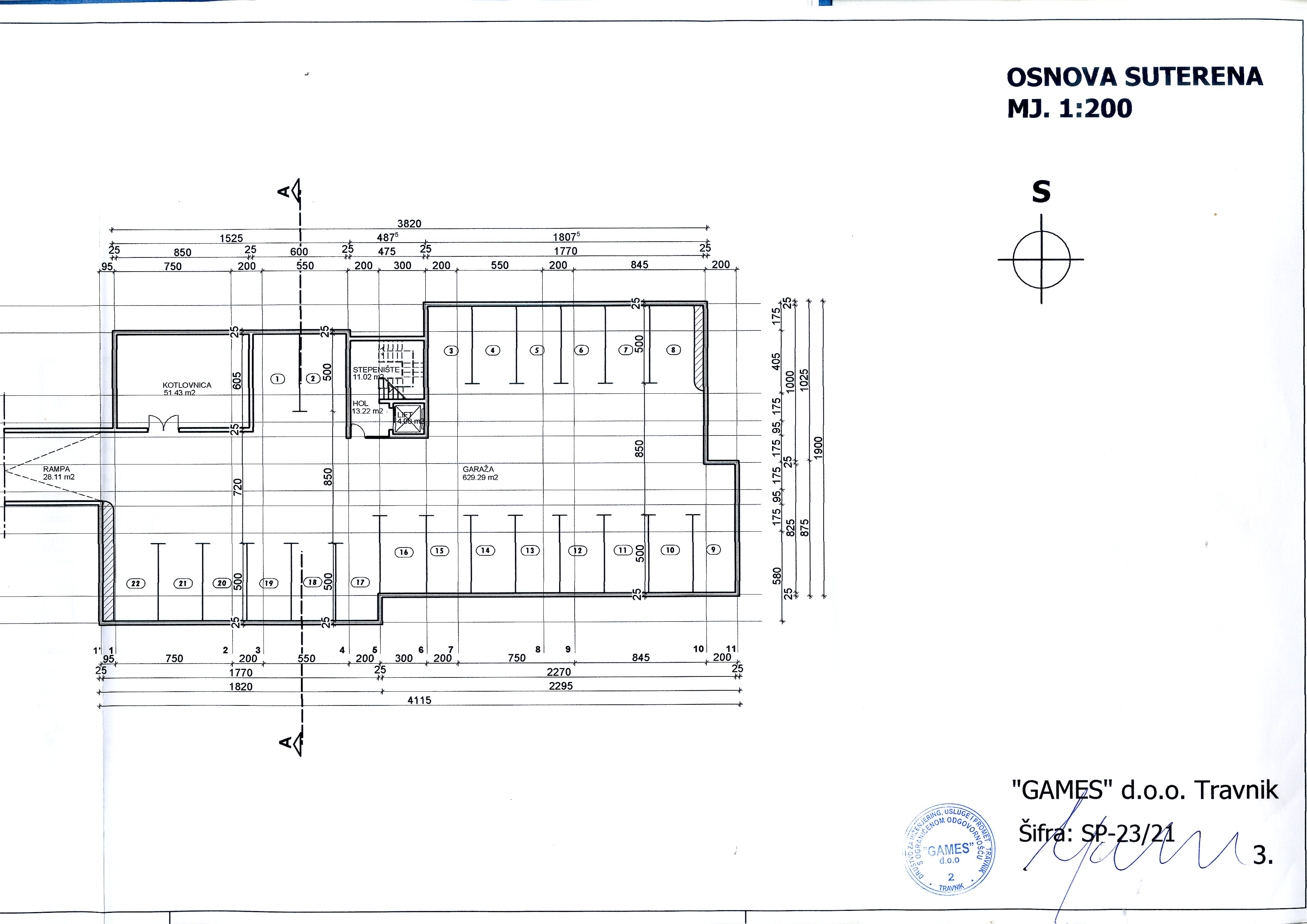
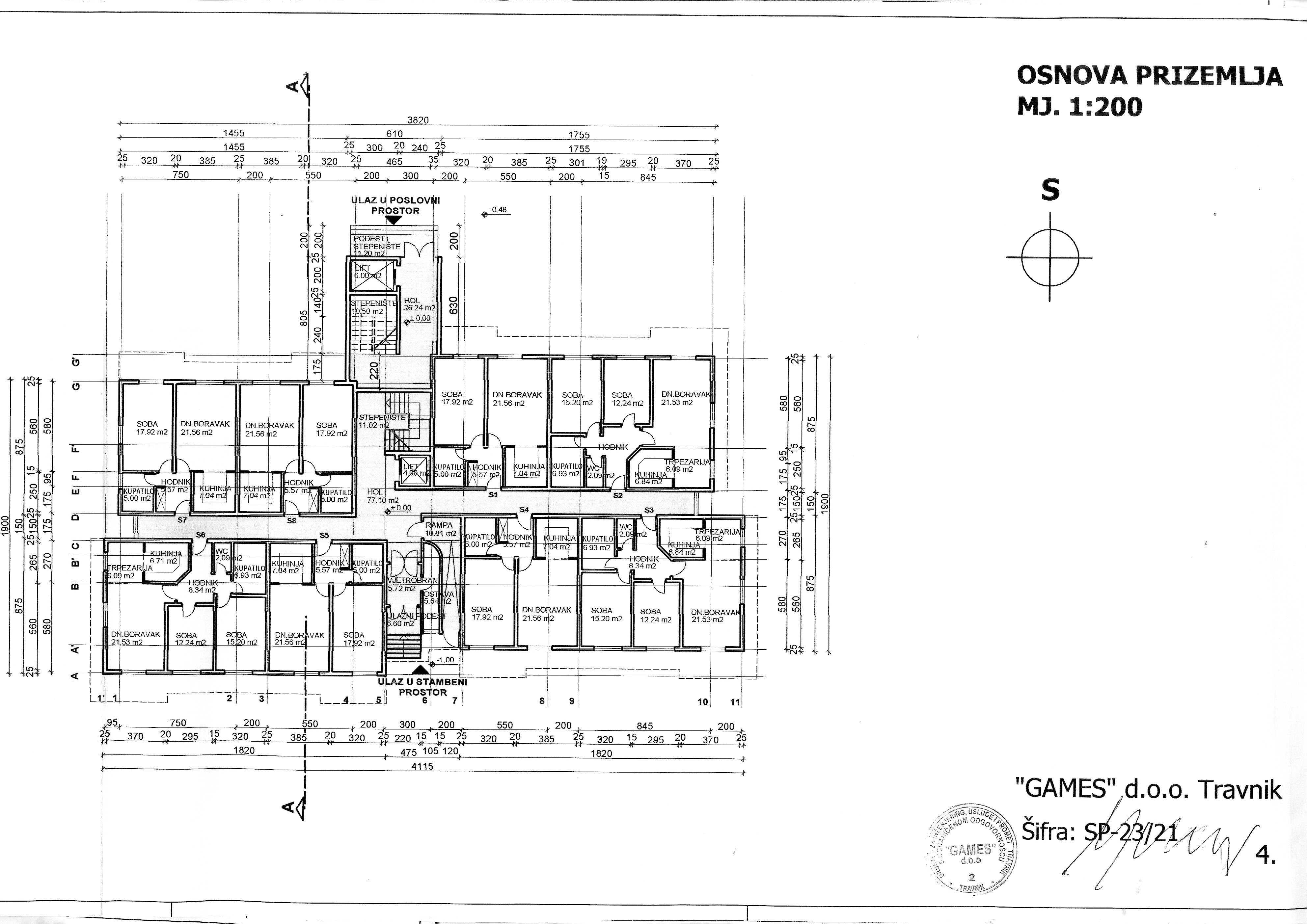
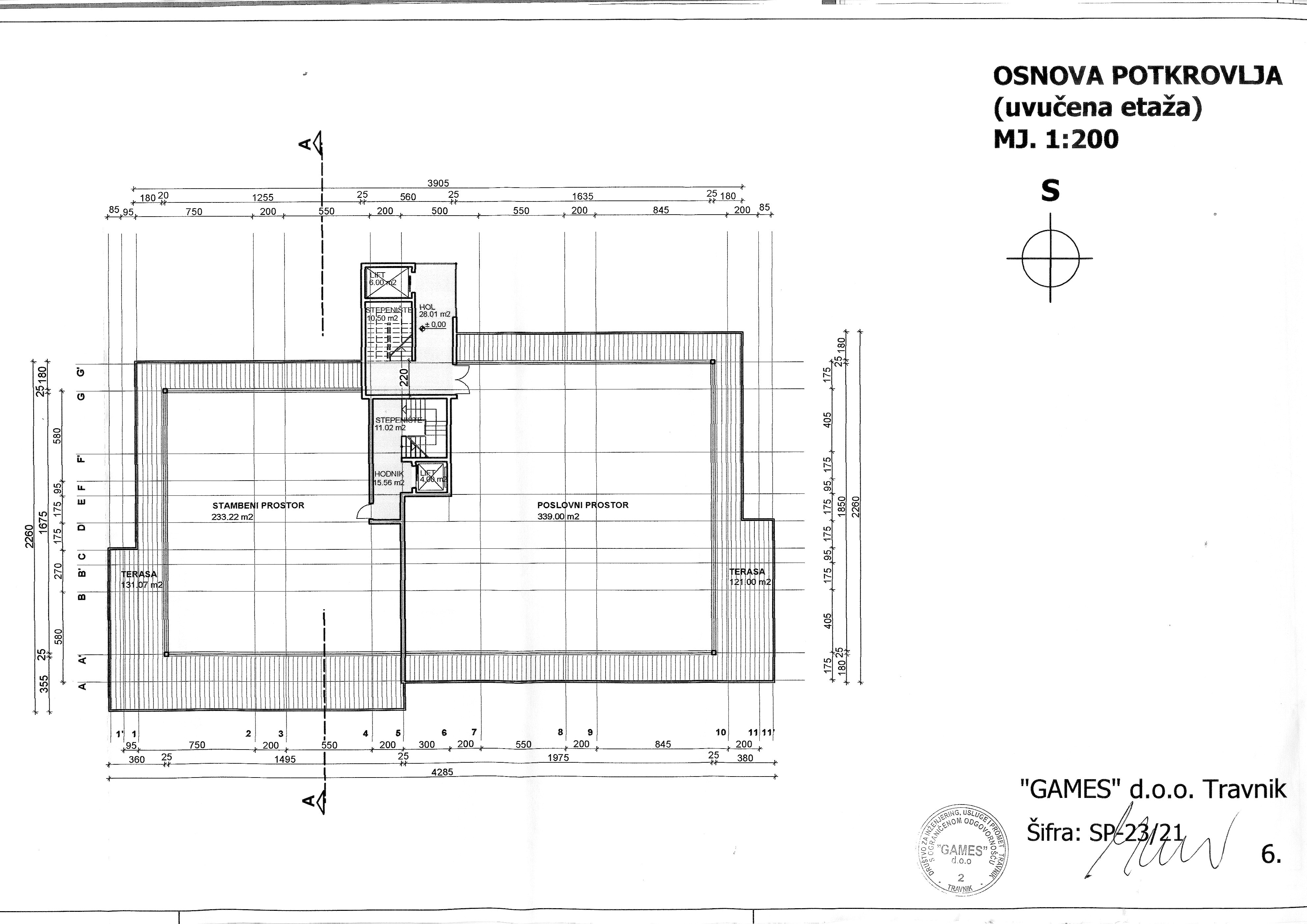
Općinska služba za urbanizam, imovinsko-pravne poslove i katastar, obavještava građanstvo da je u toku javni uvid u prijedlog Urbanističkog projekta za lokaciju stambeno-poslovne zgrade u okviru Regulacionog plana „Međuvode“
Javni uvid u Urbanistički projekat za lokaciju stambeno-poslovne zgrade u okviru Regulacionog plana „Međuvode“ održat će se u periodu od 19.07.2021. do 02.08.2021.godine u Centru za dozvole Općine Novi Travnik u analognom obliku grafičkog prikaza i tekstualnom dijelu. Plan će biti moguće pregledati elektronski na stranici Općine www.ont.gov.ba.
Sve zainteresirane pravne i fizičke osobe informacije o Planovima i stručnu pomoć mogu dobiti na mjestu predviđenom za uvid. Primjedbe na Urbanistički projekt predaju se u pisanom obliku, na naznačena mjesta u Centru
za dozvole Općine Novi Travnik ili na adresu elektronske pošte
3D vizualizacija
JAVNI UVID
ODLUKA




